FA49H型防爆波安全阀

  • 微信咨询此产品
  • 质量稳定
  • 价格合理
  • 交货快捷
  • 宏伟阀门为您提供全套工程阀门解决方案
  • 销售:0577-6737 1610
  • 传真:0577-6716 2821
  • 地址:浙江省永嘉县瓯浦二村坎下(坎下工业区)

详细介绍

产品特点及用途
FA49H型防爆波安全阀,是一种即能消除水锤冲击波又能阻挡水锤冲击波的水用安全阀。它是由多组安全阀组成的产品,所起到的功能是单一安全阀无法达到的。该阀安装于给水工程管道的头部,以挡波和消波的方式相结合,防止水锤冲击波沿着管首进入系统给水工程内部,从而达到消除破坏性水锤的冲击波,超到保护系统设施正常运转和安全防护的目的。

主要性能范围
型号 公称压力 PN(MPa) 工作压力(MPa) 壳体试验压力(MPa) 适用介质 工作温度
FA49H0 1.0 0.2 1.5 清水 0~80℃
FA49H6 1.6 0.25-0.5 2.4
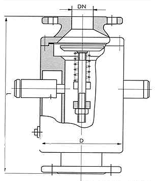
主要外形尺寸(法兰连接尺寸按GB4216的规定)
DN 50 65 80 100 125 150 200
L 390 440 440 500 520 535 600
D 160 160 160 220 270 270 375
产品尺寸

温馨提示:“FA49H型防爆波安全阀”所有文字、数据、图片均只适用于参考 实际图片数据还需要进一步与我司(宏伟阀门)核对。
如需与实物相吻合的性能参数、结构尺寸参数等详情请来电来函索取。
电话:0577-6737 1610    微信手机同号:136 2655 0179
  • 宏伟二维码微信产品咨询了解
  • 联系我们
  • 公司地址:浙江省永嘉县瓯北街道双塔路2839号内4#-1(宏伟阀门厂)
  • 浙江基地:温州瓯北东瓯工业区
  • 销售:0577-6737 1610
  • 传真:0577-6731 0589
  • 邮箱:1253729464@qq.com
© 2017 永嘉宏伟阀门厂 版权所有 浙ICP备05040190号-5
Top

[关闭]免费接听宏伟销售工程师电话

输入手机或固定电话号码,点击“免费咨询”按钮后,
我们的服务人员会在15秒内回拨您。

手机请直接输入:如 13626550179
座机前请加区号:如:057767371610
我们已对本次通话全程加密,您的通话费用我们已经帮您支付,请放心接听!
免费通话所产生的费用由我们来支付,请放心接听!
销售热线:0577-6737 1610